Florence, Italy
This project collaborates with local Florentine shop owner Roberta to redesign her boutique layout and window display. Her brand identity is deeply rooted in Florentine heritage and a commitment to Italian leather craftsmanship, appealing to those who value quality, tradition, and the artistry of Made in Italy. The concept uses rich purples, Calacatta marble, and dark walnut tones to
express quiet luxury and refined Italian elegance.
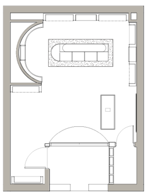
The 400 sq. ft. space integrates custom wall cabinetry for display, a bespoke bench for seating, and a dedicated accessory area showcasing hats, scarves, and shawls in luxurious fabrics such as cashmere, silk, and linen, curated to complement the leather pieces. A spring window display inspired by the wisteria pergola at the Bardini Garden reflects the beauty of spring in bloom while maintaining visual openness inside the store. The design guides customers intuitively through the space, showcasing Roberta’s craftsmanship and selected collections in a modern, elegant, and inviting way.
express quiet luxury and refined Italian elegance.
The 400 sq. ft. space integrates custom wall cabinetry for display, a bespoke bench for seating, and a dedicated accessory area showcasing hats, scarves, and shawls in luxurious fabrics such as cashmere, silk, and linen, curated to complement the leather pieces. A spring window display inspired by the wisteria pergola at the Bardini Garden reflects the beauty of spring in bloom while maintaining visual openness inside the store. The design guides customers intuitively through the space, showcasing Roberta’s craftsmanship and selected collections in a modern, elegant, and inviting way.
Accademia Italiana, project for Window Display Design, instructor Rosalba Romanelli
Completed 05/10/2025.
Situated on Borgo San Iacopo, just steps from the Arno and Ponte Vecchio, Roberta’s shop welcomes both locals and tourists along this historic Florentine street, known for its artisanal heritage, intimate scale, and timeless connection to the city’s craft traditions.