Florence, Italy
Under the Canopy invites you into the magical world of children. Located on the top floor of the historic Museo degli Innocenti, this daycare is a haven designed to spark curiosity, nurture connection, and celebrate the simple joys of childhood.
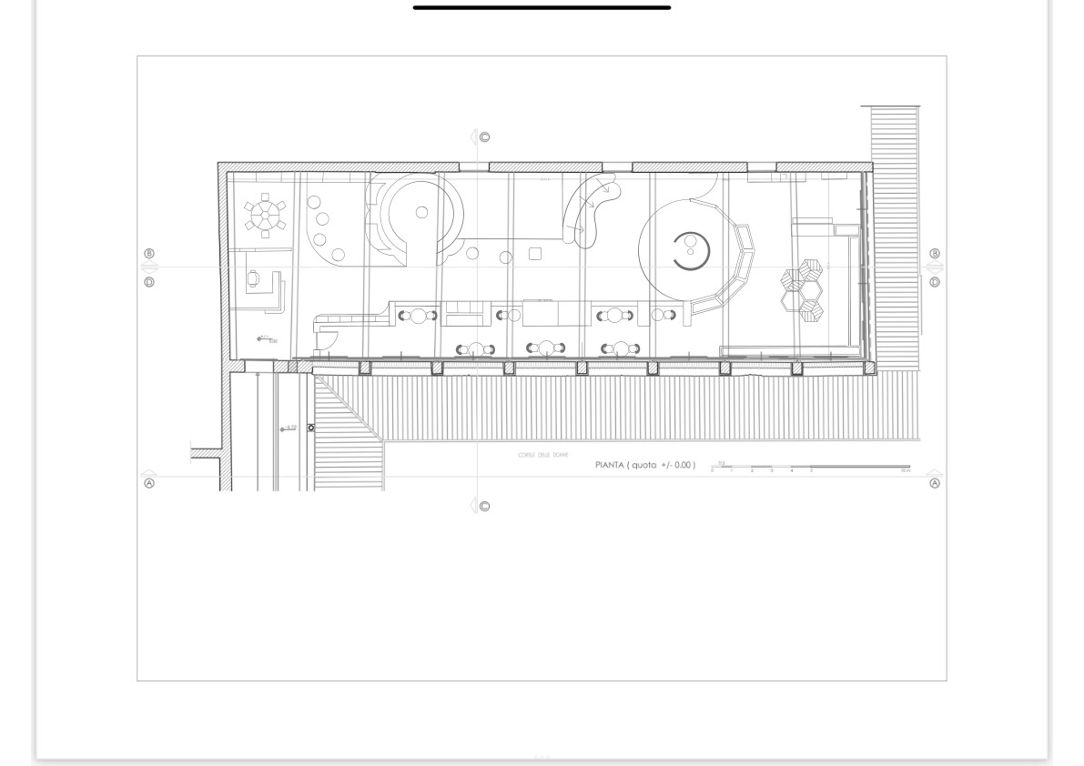
Inspired by the world of Winnie the Pooh, the space embraces simplicity, imagination, and community. The name Under the Canopy represents the Hundred Acre Wood, a shelter of trees that gives children the freedom to grow, explore, and feel a sense of belonging. The children's daycare is divided into four themed zones: The Game, The Laboratory, The Theatre, and The Planetary. Each encourages creativity and discovery. More than just a daycare, Under the Canopy is a celebration of childhood. A place where wonder blooms, friendships form, and imagination comes to life.
Full Book PDF: https://issuu.com/emilyfisherinfo/docs/under_the_canopy
Accademia Italiana, project for IDIP490 - Advanced Interior Planning, instructor Prof. V. Rocco M.
Completed 05/10/2025.
Project Location Context
The Ospedale degli Innocenti stands as one of Florence’s most significant landmarks, notable for its architectural and social impact. Designed by Filippo Brunelleschi and constructed between 1419 and 1445, it represents one of the earliest orphanages in Europe. Its beautiful arches, well-balanced proportions, and embodiment of Renaissance ideals make it stand out architecturally and underscore its importance to Florentine society.
Established to provide refuge for abandoned and orphaned children, the institution introduced the “foundling wheel” (rota dei trovatelli), which enabled mothers to anonymously leave infants in a secure and compassionate environment. (History | Istituto degli Innocenti, n.d.) Over time, the Ospedale degli Innocenti developed into a central institution for child welfare and education.
Currently, the building houses the Museo degli Innocenti, which preserves centuries of history through artworks, archival documents, and interactive exhibits centered on childhood and social care. The institution continues to support children and families, serving as an enduring symbol of Florence’s humanitarian values.
Established to provide refuge for abandoned and orphaned children, the institution introduced the “foundling wheel” (rota dei trovatelli), which enabled mothers to anonymously leave infants in a secure and compassionate environment. (History | Istituto degli Innocenti, n.d.) Over time, the Ospedale degli Innocenti developed into a central institution for child welfare and education.
Currently, the building houses the Museo degli Innocenti, which preserves centuries of history through artworks, archival documents, and interactive exhibits centered on childhood and social care. The institution continues to support children and families, serving as an enduring symbol of Florence’s humanitarian values.
Project Site
Caffè del Verone is currently the location site. It is located in the historic loggia on the top floor of the Istituto degli Innocenti and is open to all, including outsiders without a museum admission ticket. The café is also accessible to people with disabilities via elevators on each floor. Caffè del Verone has one of the most picturesque terraces with views of the Duomo and Florence’s skyline.
The loggia of the Caffè del Verone dates back to the late 15th century, when it was called the “verone” and served as a clothes drying rack for the Ospedale degli Innocenti. In the nineteenth century, it changed its function, becoming a “living room terrace for nannies, infants, and children.” (Caffè del Verone, 2023) After nearly half a century of neglect, in 2016, this renovated space came back to life as a cafeteria and refreshment point for the Museo degli Innocenti.